HOUSING COMPLEX (REUILLY) – Paris - OFFICE Kersten Geers David Van Severen

OFFICE  KGDVS

OFFICE 174

HOUSING COMPLEX (REUILLY) – Paris

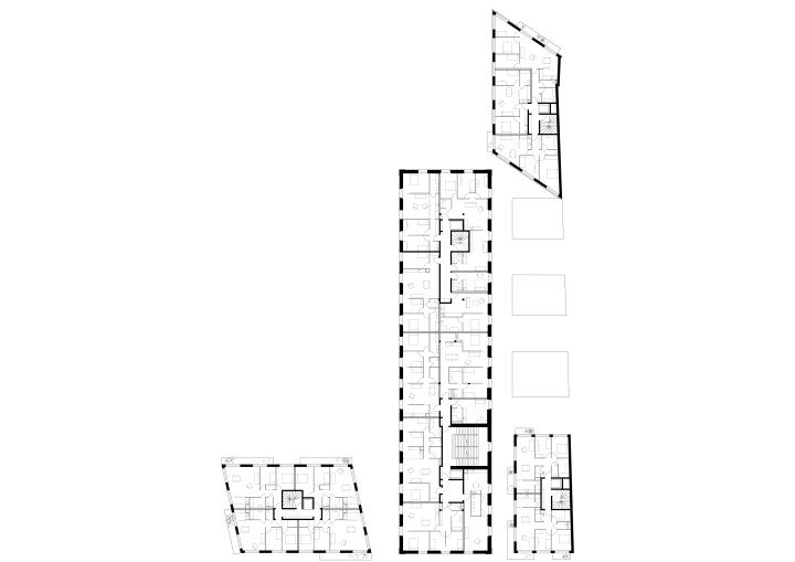
The Caserne de Reuilly – a former military barracks in the east of Paris – has been renovated and transformed to provide 600 units of mixed-use social housing. In collaboration with NP2F, OFFICE worked on Lot C in the northern corner of the complex. Combining a reused nineteenth-century building with three new constructions inserted into the existing voids, the project provides a total of 120 rental apartments. Large window openings and a ceiling height of 2.9m create a generous sense of space in the social housing. The otherwise simple entrance halls contain artworks – site-specific marble tableaux – by Daniel Dewar and Grégory Gicquel. The geometry of the rectangular volumes is distorted to meet distance requirements and allow for passageways, making a visual connection between the street and the central public garden. The resulting ensemble forms a complex piece of city where new and old buildings share common features. The tripartite facades are defined by a lower level clad in concrete slabs, a middle rendered section divided by a balcony, and a recessed top floor that forms a terrace. The facades of all three new buildings have a single window type spaced at varying intervals, giving each of them a distinct identity as a member of the same family.

Year

2014 – 2019

Location

Paris, FR

Type

Mixed use, Residential, Urban, Adaptive reuse,

Status

Built

Surface

9 000 m2

Client

Paris Habitat

Collaborator(s)

NP2F, ALTO Ingénierie, EVP Ingénierie, Impédance, VPEAS

Design team

Kersten Geers, David Van Severen, Jan Lenaerts, Justine Rossillion, Samuel Genet Aboucaya, Edouard Champalle, Alexandra Paritzky, Hugo Mazza, Stefaan Jamaer

Art integration

Daniel Dewar & Grégory Gicquel

Award

Competition, 1st prize

Photographs

Bas Princen