OFFICE  KGDVS

OFFICE 176

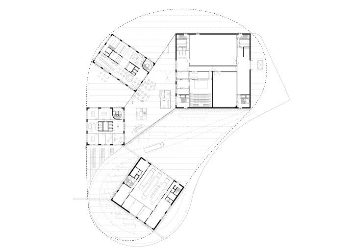
RADIO & TELEVISION BUILDING (RTS) – Lausanne

The new Radio Télévision Suisse (RTS) headquarters is situated on the campus of EPFL and UNIL universities, next to the Learning Centre on the shores of Lake Geneva. Functioning as both a broadcasting centre and a public venue with educational and research facilities, the building is conceived as a factory that combines technical performance with civic presence. Its ability to adapt to the emerging technologies and changing formats of media production is facilitated by the introduction of two distinct spatial figures: a box and a field. In essence, the building is formed by four independent rectangular ‘boxes’ of varying sizes that support a curvilinear slab suspended 8m above the permeable ground floor. The glazed foyer positioned between three of the boxes encloses the main entrance with its central staircase and divides the public area with a restaurant and café from the logistics area with technical facilities and a garage for production trucks. Each of these compact rectangular volumes is dedicated to a different purpose: to broadcasting and recording studios, technical and educational facilities, and administrative offices. In turn, the double-height suspended slab is designed as an open-plan ‘field’ of offices and production spaces, with flexible workplace configurations. This continuous interior is lit by a shed roof and intersected by Warren trusses that span between the volumes, organising different areas with their distinctive structure and colour patterning. In its complexity and quasi-urban configuration created by furniture and protruding boxes, the field is a collective space that reproduces the sprawling university campus.

Year

2014 – 2025

Location

Lausanne, CH

Type

Office, Public, Media, ,

Status

Built

Surface

40 500 m2

Client

Société Suisse de Radiodiffusion et Télévision

Collaborator(s)

Fehlmann Architectes, Bureau Bas Smets, Bollinger+Grohmann, Jeroen Provoost, Ingeni SA, BCS, Les Éclaireurs, AZ Ingénieurs, MAB Ingénierie, Décibel Acoustique, Walters Storyk Design Group Basel, Amstein + Walthert / ALWEOL, SRG Engineering, Ignis Salutem, Estia SA

Design team

Kersten Geers, David Van Severen, Giovanni Lazzareschi Sergiusti, Antonios Prokos, Jacopo Lugli, Ivana Čobejová, Bert Rogiers, Enea Facoetti, Steven Bosmans, Irini Peraki, Justine Rossillion, Hugo Mazza, Joschka Kannen, Yuichiro Onuma, Nenad Ðuric ́, Mahsa Ramezanpour, Riham El Moazen, Federico Taverna, Hugo Santoalha, Ronan Murray, Margaux Dequaire, Gregory Devaud, Alice Tripet

Award

Competition, 1st prize

Images

ArtefactoryLab