OFFICE  KGDVS

OFFICE 216

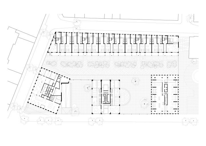
HOUSING COMPLEX – Brussels

OFFICE, in collaboration with Nicolas Firket Architects and Bureau Bas Smets, won this competition for the redevelopment of the ‘Havenlaan 12’ site at the Brussels Canal area, by developer Triple Living. The competition was organised by Brussels Bouwmeester, who together with the Molenbeek commune, the Brussels regional authorities and the client, chose the project out of an original longlist of 30 teams, and 3 final proposals. The site, which sits next to Tour&Taxis and faces the future ‘Beco park’ along the canal, is currently occupied by an office building. It will be replaced by a family of three small towers and a lineair housing block, organised around a central semi-public garden. The volumes, who share a similar character and finishing in coloured concrete paneling, will together form a permeable, urban ensemble with a strong identity, which can be seen as a blueprint for future developments. The existing underground parking will be used as the foundation for the new development. The 28 000 m² of planned floor surface will contain a mix of housing, assisted living, a hotel and various commercial spaces. The various types of housing (row houses, apartments and studios) will be complemented with private outside spaces, from gardens at the ground level until terraces, loggia’s and winter garden in the upper levels.

Year

2016 –

Location

Brussels, BE

Type

Mixed use, Residential, Urban

Status

Ongoing

Surface

29 000 m2

Client

Triple Living, Skyline

Collaborator(s)

Nikolas Firket Architects, VK architects+engineers, Bureau Bas Smets, Bontinck Architecture and Engineering

Design team

Kersten Geers, David Van Severen, Jan Lenaerts, Inga Karen Traustadottir, Tristan Narcy, Bert Rogiers, Henri de Chassey, Edoardo Massa, Sacha Ketelbuters, Alice Galligo, Enea Facoetti, Stefaan Jamaer, Justine Rossillion

Award

Competition, 1st prize