OFFICE  KGDVS

OFFICE 224

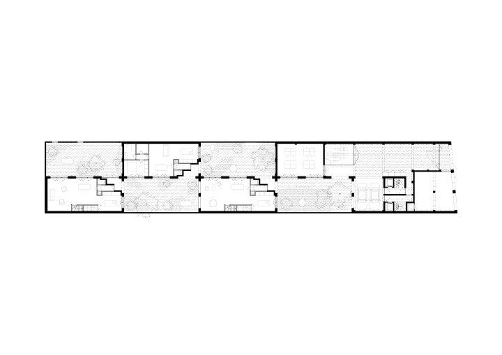
HOUSING COMPLEX (VETTENBURG) – Ghent

An industrial building that occupied an entire deep and narrow plot along the River Scheldt in the centre of Ghent was to be transformed into cooperative housing with a shared garden. A precise study of the existing building, and a desire to open up this dense structure, resulted in a scheme of alternating built volumes and open courtyards. The existing structure was partly retained and new volumes were added to meet the requirements of the housing complex. A storefront, an atelier and a two-storey apartment face onto the street. To the rear of the plot, there are two single-family houses and one studio apartment. The existing brick perimeter wall is preserved and painted white, defining the base of the entire complex, while all the volumes above this wall are rendered. Each housing unit has access from – and generous exposure to – a lush garden. Landscape plays an important role in maintaining the coherence of the complex and at the same time giving the individual houses a sense of detachment and privacy. A path meanders, uninterrupted, between the volumes, which have corner indentations. Whereas each house has its own courtyard, they all merge into a single garden that enables circulation through the entire plot.

Year

2017 – 2025

Location

Ghent, BE

Type

Mixed use, Residential, Adaptive reuse,

Status

Built

Surface

800 m2

Client

De Voorkant, Yure

Collaborator(s)

DS Engineering, Kollektif landscape, Raco, Pans Consultancy

Design team

Kersten Geers, David Van Severen, Jan Lenaerts, Leander Venlet, Ivana Čobejová, Thomas Mertens, Photini Mermiga, Sacha Ketelbuters

Photographs

Bas Princen