OFFICE  KGDVS

OFFICE 244

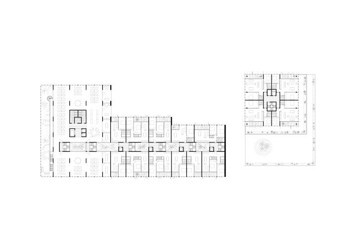
METROPOLITAN TWINS – Lausanne

One of the largest former industrial zones in Lausanne is set to be transformed into a new neighbourhood. The project for a mixed-use complex alongside the railway tracks is part of the first phase of this redevelopment. In a place whose only quality is its proximity to other places, some kind of instant urbanism was required on a metropolitan scale. Hence the twin towers: both share the same facade materialisation and proportions of stepping volumes, but one is vertical, the other laid horizontally next to it. When reclined, the form of the tapering tower translates into a complex urban block that creates an urban antechamber between the two buildings, defining a more protected area for the apartment entrances. The buildings contain a diverse programme of public and retail areas on the ground floor, with offices in the more massive volumes and housing in the more slender ones. The compact towers, together with the public spaces they create, evoke the metropolitan condition of Lausanne’s future agglomeration.

Year

2017

Location

Lausanne, CH

Type

Mixed use, Office, Residential

Status

Unbuilt

Client

CFF SA

Collaborator(s)

Fehlmann Architectes

Design team

Kersten Geers, David Van Severen, Bert Rogiers, Nenad Ðurić, Stefaan Jamaer, Edoardo Biondetti, Alice Galligo