ART GALLERY – Antwerp - OFFICE Kersten Geers David Van Severen

OFFICE  KGDVS

OFFICE 247

ART GALLERY – Antwerp

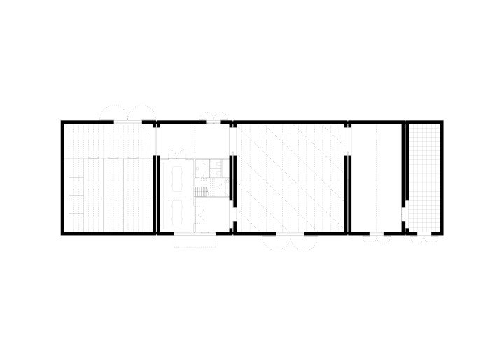
The Tim Van Laere Gallery of contemporary art occupies a strategic position in the new neighbourhood created by an ambitious urban redevelopment plan for a part of Antwerp sandwiched between a highway and the River Scheldt. Surrounded by large residential and office buildings, its structure is revealed at a glance in its staggered silhouette: a concatenation of rooms, or pure types of buildings – storage space, offices, white cube, chapel, patio – each with a particular size and proportions adapted to different ways of experiencing art. The rooms are constructed as simple in-situ concrete boxes, each made specific by infills of wooden structural elements. Aside from their dimensions, the rooms are differentiated by their roof structure. All are internally isolated and lit from above: skylight systems made of differently shaped laminated timber elements give each space its own unique lighting conditions. As a central part of the new neighbourhood, the building aims to stimulate its environment with its urban ambition. With its gates opening directly onto the street, it relates to both its immediate context and its content. Art, its central focal point, is made visible and accessible to all.

Year

2017 – 2019

Location

Antwerp, BE

Type

Culture,

Status

Built

Surface

900 m2

Client

Tim Van Laere Gallery

Collaborator(s)

Bureau Bas Smets, hp engineers, ARC

Design team

Kersten Geers, David Van Severen, Jan Lenaerts, Jacopo Lugli, Inga Karen Traustadóttir, Stefaan Jamaer, Photini Mermiga, Henri de Chassey, Thomas Mertens, Nicolas Berrebbi

Photographs

Bas Princen