OFFICE  KGDVS

OFFICE 277

TRADE FAIR CENTRE – Liège

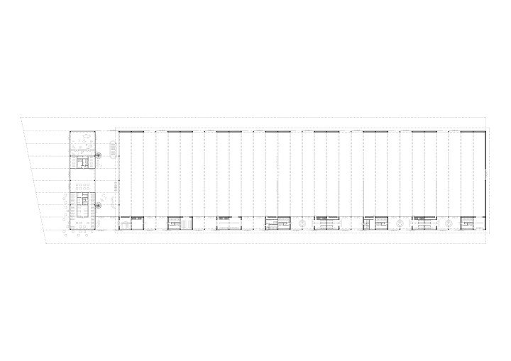
The project for a new trade fair centre on the outskirts of Liège, done in collaboration with AgwA, has a dual ambition. It is a massive industrial building intended to accommodate crowded trade shows, but it also strives to perform as a civic building when there are no fair-related events and to become a marker of the future de-industrialisation of Liège. Measuring 286m × 68m, the building is essentially an empty box that is easy to adapt to any interior configuration, with all the technical spaces arranged on its long edge. Its only particular feature is the cantilevered sawtooth roof, a spatial device that gives the building its identity and mediates between the building and its surroundings – an industrial zone next to a residential neighbourhood with scattered social housing towers. The roof overhang functions as a loading dock canopy to the north and organises pedestrian circulation to the parking lot to the south. Its skewed cantilevering edge marks the entrance to all the offices and services, and forms a covered square for the tram and bus stops, connecting the site to the residential neighbourhood it faces.

Year

2018

Location

Liège, BE

Type

Culture, Industrial, Mixed use, Public,

Status

Unbuilt

Client

Intercommunale de Gestion Immobilière Liégeoise (IGIL)

Collaborator(s)

AgwA, Bollinger+Grohmann, Denis Dujardin, A+ Concept, Daidalos Peutz, TTAS, Muller Van Severen, Richard Venlet

Design team

Kersten Geers, David Van Severen, Bert Rogiers, Enea Facoetti, Ziou Gao