OFFICE  KGDVS

OFFICE 286

DEPARTMENT STORE – Paris

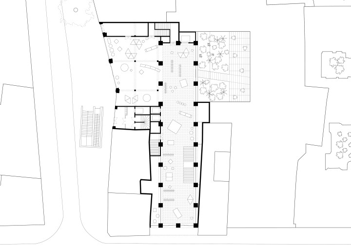
Combining retail with housing, this project is part of an ongoing strategy to densify and connect the urban fabric of the historic Marais district in the heart of Paris. The new Galeries Lafayette department store is thus envisioned as a pedestrian link, inserted within a partly demolished existing urban block, and connecting with the Fondation Lafayette Anticipations through a sequence of open spaces, courtyards and passages. The main volume of the new building has a structural grid of square pillars and a glazed facade that opens to the side street. From the main thoroughfare, this intervention remains hidden behind the existing facade, which has been fully preserved and restored. Only the ground floor reveals the porosity of the entire block, which leads to the central courtyard connected to the surrounding buildings. This courtyard contributes to the natural ventilation, and together with new green roofs reduces the urban heat island effect. While the department store stretches across three open floors, the upper floors are reserved for housing. The apartment units occupy the existing renovated building and form three terraced volumes above the department store base, with elevated green courtyards in between them.

Year

2018 – 2024

Location

Paris, FR

Type

Adaptive reuse, Retail

Status

Unbuilt

Surface

4 100 m2

Client

Fondation d’Enterprise Galeries Lafayette, Citynove

Collaborator(s)

CALQ Agence d’Architecture, Bollinger+Grohmann, PROJEX, Bureau Bas Smets, Franck Boutté Consultants, R-USE, BMF, GE-CO, Meta, Bureau Veritas, Systematica

Design team

Kersten Geers, David Van Severen, Justine Rossillion, Chiara Malerba, Shinji Terada, Giovanni Lazzareschi Sergiusti, Côme Rolin, Luzi Speth, Inès Langlois, Seppe Claes, Enea Facoetti, Linea Dyrbye Jensen, Steven Bosmans, Callum Symmons, Matteo Silverii

Award

Competition, 1st prize