OFFICE  KGDVS

OFFICE 301

UNIVERSITY CAMPUS – Antwerp

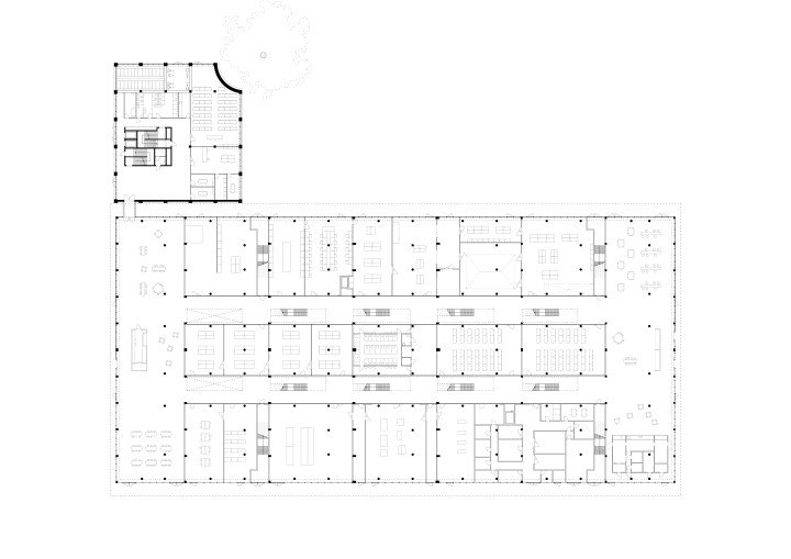
The project called for the transformation of a former slaughterhouse into a new campus for the AP University of Applied Sciences and Arts in Antwerp. A single-storey 7,600 m² industrial hall was to be reused as a high-tech workspace for around 3,500 students enrolled in science and biomedical technology courses. To achieve this, a new floor slab was inserted into the existing hall, doubling the original surface area of the building. This new structural ‘table’ stands on round columns, its smooth concrete finish distinguishing it from the existing concrete structure, which is left exposed. The new structure further stabilises the original facade, which was cut to make a continuous glazed panelling at ground level, and perforated above this with round openings that serve either as windows or as air vents. The plan is organised by two wide parallel corridors that give access to all the workshops, lecture rooms and laboratories. Adjacent to the hall, and connected to it by a passage on the ground floor, a new tower houses classrooms and administrative offices, with its volume stepping back to make terraces on the upper floors. Together the tower and the hall define the landmark of the future sustainable new quarter.

Year

2020 – 2024

Location

Antwerp, BE

Type

Education, Adaptive reuse,

Status

Built

Surface

21 800 m2

Client

AP Hogeschool, Triple Living, Immobel

Collaborator(s)

Jaspers-Eyers Architects, Vanhout, Group D, Studiebureau Van Reeth, VENAC, PosadMaxwan

Design team

Kersten Geers, David Van Severen, Jan Lenaerts, Inga Karen Traustadóttir, Tristan Narcy, Virginia Santilli, Julius Seniunas, Margherita Sorgentone, Marcello Carpino, Shinji Terada, Elena Catalano, Cecilia Tarantino, Nicolas Berrebbi, Costanza Zeni, Alice Galligo

Award

Nominated for the Mies van der Rohe Award 2026
Nominated for the Brussels Architecture Prize 2025, category ‘Extra Muros’
Finalist for the BigMat International Architecture Award 2025

Photographs

Bas Princen