OFFICE  KGDVS

OFFICE 314

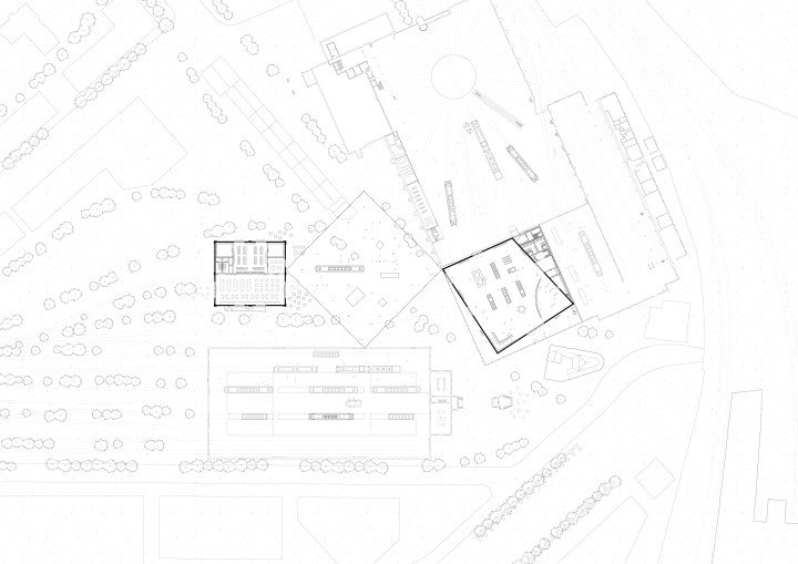
RAILWAY MUSEUM – York

The National Railway Museum, next to York station, occupies a site rich in nineteenth-century railway heritage and infrastructure. The aim of the project was to improve the connectivity of the museum, which is made up of two separate buildings, the Station Hall and the Great Hall, and to create new exhibition and public space as part of the larger strategy for regenerating city-centre brownfield sites. The project inserts into the existing ensemble of industrial buildings two square roofs supported by slender columns standing 10m high. The new exhibition hall is a skewed red sandstone box under the light steel roof abutting the Great Hall. Visitor reception, retail and seating form small informal spaces around the central day-lit and flexible exhibition space. Beside it, a second 50m × 50m translucent roof covers a new public space that offers a flexible setting for events such as outdoor markets. The two squares, arranged corner to corner, extend to the existing Silcock Goods Shed, now transformed into a restaurant.

Year

2019 – 2020

Location

York, UK

Type

Culture, Public, Adaptive reuse,

Status

Unbuilt

Surface

4 000 m2

Client

National Railway Museum

Collaborator(s)

6a architects, Price & Myers, Ritchie+Daffin

Design team

Kersten Geers, David Van Severen, Thomas Mertens, Virginia Santilli, Mattia Chinellato, Olivier Thomas

Images

Filippo Bolognese