OFFICE  KGDVS

OFFICE 334

OFFICE BUILDING (MONTOYER) – Brussels

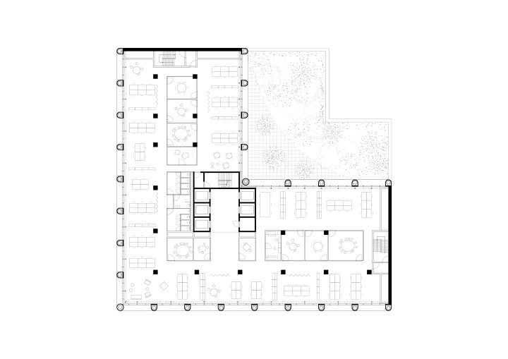
The transformation of a mid-’90s office building involved major works to meet contemporary standards of office space and to better integrate the building into its urban environment. The office block, situated on a corner plot on Rue Montoyer in Brussels’ European Quarter, was stripped down to its concrete structural frame. Two recessed floors were added to the nine-storey building, forming a compact figure with a truncated roofline. As the existing floor height was too low to integrate the ventilation system, the ducts were installed on the facade. A network of pipes is concealed by a grid pattern of aluminium profiles that uniformly covers the building, giving it a distinct visual appearance. This cladding enables the easy maintenance and future replacement of the utilities it encloses. The new facade allows for larger window openings and more natural light. Inside, the office spaces are arranged around the existing cores, and combine open floor plans with enclosed meeting rooms. On the ground floor, a double-height foyer forms a transparent and permeable street-level frontage, offering a glimpse of the enclosed garden to the rear.

Year

2021 – 2025

Location

Brussels, BE

Type

Office, Adaptive reuse,

Status

Built

Surface

21 700 m2

Client

Alides

Collaborator(s)

LD2 architecture, VK architects+engineers, CES, Maes Van Roey, Bureau De Fonseca, kollektif landscape, Encon, Advista

Design team

Kersten Geers, David Van Severen, Jan Lenaerts, Justine Rossillion, Hugo Mazza, Seppe Claes, Filippo Arenosto, Edoardo Massa, Matteo Silverii, Oriane Jan, Thibault de Smet, Hadrien Nicora

Photographs

Bas Princen